Opis

Obowiązującą ceną sprzedaży jest cena podana w FORINTACH (HUF) bądź EURO (EUR). Cena
podana w złotych polskich (PLN) jest jedynie ceną orientacyjną i tylko w taki sposób należy ją traktować.

Nieruchomości dostępne na naszej stronie to tylko część naszej bogatej oferty, którą stale rozbudowujemy. Jeśli jesteś zainteresowany dodatkowymi ofertami, które jeszcze nie pojawiły się na stronie, to skontaktuj się z naszymi doradcami!

Zadzwoń lub napisz do nas, a pomożemy Ci znaleźć wymarzoną nieruchomość, która spełni wszystkie Twoje oczekiwania.

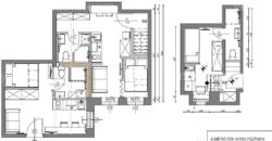
Do sprzedania mieszkanie 56 m2, podzielone na 3 mniejsze (2×20 m i 16m2), osobne apartamenty, wykończone w wysokim standardzie, wszystkie wynajęte, ze stopą zwrotu ok. 6%.

Dzięki położeniu w pobliżu placu Kossutha, a zatem Parlamentu, licznych Ministeriów i innych instytucji, brzegu Dunaju oraz przystanku metra nr 2 apartamenty są rozchwytywane, do tej pory wydawane były z umowami na dwa lata. Apartamenty mieszczą się na parterze, dwa mają widok na podwórze, jedno na atrium.  Wszystkie są w pełni umeblowane i wyposażone w niezbędne AGD, niedawno przeszły kompleksowy remont, łącznie z wymianą wszystkich instalacji, a dzięki przemyślanemu designowi sprawiają wrażenie obszernych.

Wydatki miesięczne nieco tylko przekraczają 10.000 Ft miesięcznie, wliczając również ratę za ogrzewane centralne, słowem mowa tutaj o bardzo niskich kosztach utrzymania.

Wspólnota, złożona z ludzi spokojnych, cichych i kulturalnych, dysponuje kapitałem na poziomie 10.000.000 Ft.

Wszystkie apartamenty w tej chwili wynajęte są na okres dwóch lat, z miesięcznym okresem wypowiedzenia, obecni lokatorzy nie stwarzają problemów, płacą terminowo, są obowiązkowi i kulturalni.

Apartamenty można nabyć również pojedynczo:

G1, 20 m2 – 40.000.000 Ft

G2, 20 m2- 40.000.000 Ft

G3, 16 m2 – 30.000.000 Ft

Treść niniejszego ogłoszenia nie stanowi oferty handlowej w rozumieniu Kodeksu Cywilnego. Treść ma charakter informacyjny i konieczna jest  osobista weryfikacja. Kontaktując się z biurem Klient wyraża zgodę na przetwarzanie danych osobowych zgodnie z przepisami ustawy z dnia 29 sierpnia 1997 roku o ochronie danych osobowych / Dz.U.Nr. 133 poz. 883/. Klientowi przysługuje prawo do wglądu do swoich danych osobowych i ich aktualizacji.

Adres

Szczegóły

  • ID nieruchomości 5-52111
  • Cena 111 mln HUF 1 173 000PLN
  • Rodzaj nieruchomości ,
  • Status nieruchomości
  • Pokoje 3
  • Sypialnie 3
  • Łazienki 3
  • Powierzchnia 56 m2

Kontakt

Projekt Węgry

+48 783 978 282
Wprowadź swoje imię!
Wprowadź swój numer telefonu!
Please enter your valid Email!
Proszę wpisz twoją wiadomość!